Map

Casita Rincón – Modern Tiny Home for Sale in Pedasí, Panama

Pedasí, Los Santos Province 577 views Oct 16, 2025

$44,000 Selling

Overview
Category House
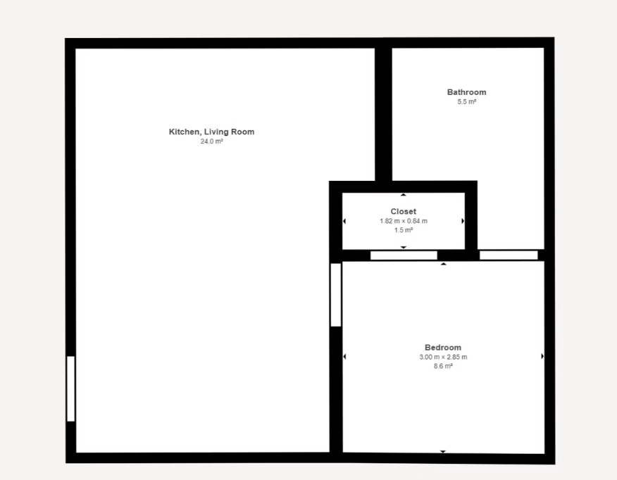
Square 47 m²
Number of bedrooms 1
Number of bathrooms 1
Price $44,000
Listing Number PLS-20049
Land Area m² 47
Description

Casita Rincón – Modern Tiny Home for Sale in Pedasí, Panama

Where simplicity becomes luxury in miniature.

In the heart of Pedasí’s sun-warmed landscape, where the sound of the ocean meets the whisper of palm fronds, Casita Rincón redefines what it means to live beautifully—and simply. This modern 1-bedroom, 1-bathroom tiny home distills everything you need (and nothing you don’t) into a space designed for comfort, efficiency, and ease of living.

With 34 m² (366 sq. ft.) of thoughtfully planned interior space and a 13 m² (134 sq. ft.) covered porch, Casita Rincón feels far more expansive than its footprint suggests. Every detail—light, airflow, and layout—has been considered to create a home that breathes with the rhythm of the tropics.


Modern Design, Smart Living

The open-concept living area welcomes you with high ceilings and natural light that dances across cool ceramic floors. Every corner feels airy and intentional—perfect for quiet mornings with coffee or evenings with friends on the shaded porch.

The kitchen is sleek and efficient, featuring smart cabinetry, pantry space, and a kitchen island designed for both practicality and charm. The bedroom accommodates a king-size bed, with ample closet space and direct access to a spacious bathroom—larger than what most casitas offer, complete with a generous shower and modern fixtures.

Outside, the covered front porch becomes a natural extension of your home—ideal for outdoor dining, lounging, or simply enjoying the breeze that drifts through Pedasí’s golden afternoons.


Built to Last

Solid concrete block walls for lasting strength and easy maintenance

Insulated sandwich-panel steel roof for temperature control and insect resistance

High-quality windows for natural light and airflow

Energy-efficient design to keep utility costs low

Low-maintenance finishes built for Panama’s tropical climate

Whether you already own land or need help finding the perfect lot, this turnkey build can be delivered ready to move in—with developer support from start to finish.

Tiny Home, Big Possibilities

At just $44,000 USD, Casita Rincón is an investment in freedom. Perfect as a primary residence, guest house, or rental property, it’s a rare opportunity to enjoy modern tropical living without excess. Compact, elegant, and affordable—this is minimalism made meaningful.

Life in Pedasí, Panama

Welcome to Pedasí, a place where colorful homes line quiet streets and the day’s biggest decision might be whether to surf, fish, or simply relax. This friendly coastal town offers the best of both worlds: local authenticity and a growing international community.

You’re minutes from Playa Arenal, where fishermen head out at sunrise, and just a short drive to Playa Venao, famous for surfing, yoga retreats, and beachside restaurants. The town itself features everything you need—markets, cafés, medical facilities, and a warm, welcoming pace of life that feels like a permanent vacation.

Pedasí isn’t just a location—it’s a way of living lightly, freely, and fully.



Location

Pedasi, Los Santos, Panama


Share this property: